Beschrijving

Wegens de enorme belangstelling nemen wij aanvragen binnengekomen na 3 feb. niet meer in behandeling.

Gelieve enkel per mail te reageren naar info@huurstek.nl

De foto's zijn van een soortgelijk appartement. 

Ontdek het nieuwe wonen in duurzame luxe, zonder gasaansluiting! Dit A+-gecertificeerde appartementencomplex, gelegen in de sfeervolle wijk Crosestein te Zeist, biedt een unieke kans op comfortabel en milieubewust wonen.
Op slechts 4 minuten fietsen van winkelcentrum De Clomp en met een directe buslijn naar Utrecht CS om de hoek, geniet je hier van ultieme bereikbaarheid en gemak.

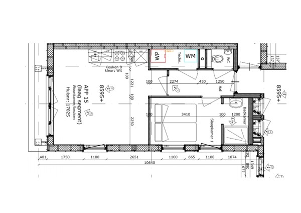
Het betreft een schitterende transformatie van een voormalig kantoorpand, waarin 15 luxueuze huurappartementen zijn gerealiseerd. Vanaf 01-maart 2025  is er één appartement beschikbaar op de derde verdieping, met een fransbalkon en een energielabel A+.
Met een oppervlakte van 45m2 biedt dit appartement één slaapkamer, gecombineerd met moderne voorzieningen zoals vloerverwarming, HR++ glas en een warmtepomp. 

De keuken is uitgerust met hoogwaardige apparatuur, waaronder een inductiekookplaat, vaatwasser en een ruime koel-vriescombinatie.
De servicekosten bedragen €50,- per maand.

Mis deze kans niet om te wonen in een moderne, milieuvriendelijke omgeving waar luxe en duurzaamheid hand in hand gaan. Neem contact met ons op voor meer informatie en een bezichtiging. Let op: de bijgevoegde foto's dienen ter illustratie en zijn niet representatief voor het beschikbare appartement.

Extra informatie:
De foto's zijn van een soortgelijk appartement.
• Verhuur onder voorbehoud gunning eigenaar.
• De waarborgsom bedraagt: €2012,-
• Huisdieren zijn niet toegestaan
• Inkomenseis: minimaal 3 x de kale maandhuur aan bruto vast inkomen voor 1 persoon en 4 x de kale maandhuur voor 2 personen (stel, geen woningdelers)
 Ondernemers moeten van de laatste 3 jaar de jaarcijfers kunnen overleggen.

Via Huurcheck Nederland wordt de kredietwaardigheid van de toekomstige huurder(s) gescreend middels creditchecks van o.a. BKR, EDR, Focum en IDcheck
Aan onvolkomenheden in de hierboven vermelde gegevens, kunnen geen rechten of aanspraken worden ontleend.
 

https://www.pararius.nl/info/selectieprocedure-huurder

Kenmerken