Beschrijving

Wonen midden in het hart van Arnhem, met aan de voorzijde uitzicht op de levendige Markt en aan de achterzijde juist rust, zon en privacy? Welkom bij Markt 36-3. 

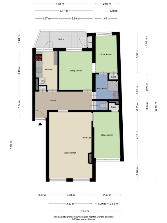
Dit sfeervolle (voormalig) 4-kamerappartement van ca. 93 m² ligt op de 3e verdieping van een kleinschalig complex uit 1952, met een eigen berging in de onderbouw én een extra (berg)kamer op de 4e verdieping. Comfortabel wonen en een goed functionerende VvE.

De grote raampartijen aan de voorzijde zorgen voor een fijne lichtinval en een open stadsgevoel. Aan de achterzijde vind je een echte verrassing: een heerlijk ruim balkon over vrijwel de hele breedte, met prachtige middag- en avondzon. Een buitenruimte waar je in alle rust kunt zitten, terwijl je letterlijk op loopafstand bent van alles wat Arnhem zo leuk maakt.
En parkeren? Midden in de stad en toch praktisch: dit kan via een gemeentelijke parkeervergunning.
________________________________________
Indeling
Begane grond
Afgesloten entree met intercom, brievenbussen en toegang tot de kelder met een grote gezamenlijke fietsenstalling en eigen afsluitbare berging.
3e Verdieping
Ruime entree/hal, toilet met fonteintje. Lichte woonkamer met uitzicht over de Markt en aansluitend de eetkamer. Vanuit de achterzijde stap je zo het brede balkon op.
Verder beschikt het appartement over een dichte keuken, 2 slaapkamers en een nette badkamer met douche en wastafelmeubel.
4e Verdieping
Extra (berg)kamer met dakraam: ideaal als hobbyruimte, voorraad-/kofferkamer of plek voor spullen die je niet dagelijks nodig hebt.
________________________________________
Ligging
Toplocatie aan de rand van het centrum: winkels, horeca, theaters en openbaar vervoer op loopafstand. Daarnaast zijn de uitvalswegen snel bereikbaar. Stads wonen met alle gemak, zonder in te leveren op rust thuis.
________________________________________
Bijzonderheden
•	Woonoppervlak ca. 76 m² +  17m2 extra kamer op de vierde verdieping.
•	Bouwjaar 1952
•	Actieve VvE, servicekosten € 200,- per maand
•	Gelegen op de 3e verdieping
•	2 slaapkamers
•	Royaal balkon met middag- en avondzon
•	Extra (berg)kamer op de 4e verdieping
•	Eigen berging in de onderbouw + gezamenlijke fietsenstalling
•	Parkeren via gemeentelijke parkeervergunning

Er is geen vragenlijst en Lijst van zaken beschikbaar en de 'niet-zelfbewonersclausule' is van toepassing;
Per direct beschikbaar.

Kenmerken