Description
Vrijstaand wonen met ruimte, karakter en eindeloze mogelijkheden.
In een geliefde woonwijk nabij het centrum van Didam staat deze karakteristieke en sfeervolle vrijstaande woning op een royaal perceel van 678 m².
Een woning met ruimte, privacy, een fijne tuin rondom en volop mogelijkheden om hier iets heel bijzonders van te maken.
Marsweg 3 is zo’n huis waarbij je meteen voelt dat de basis klopt. De ligging is fijn, het perceel is ruim, de woning heeft karakter en de indeling biedt verrassend veel mogelijkheden. Tegelijkertijd vraagt de woning om aandacht, liefde en modernisering. Juist daarin ligt de kans: hier kun je een royaal vrijstaand woonhuis volledig naar eigen smaak creëren.
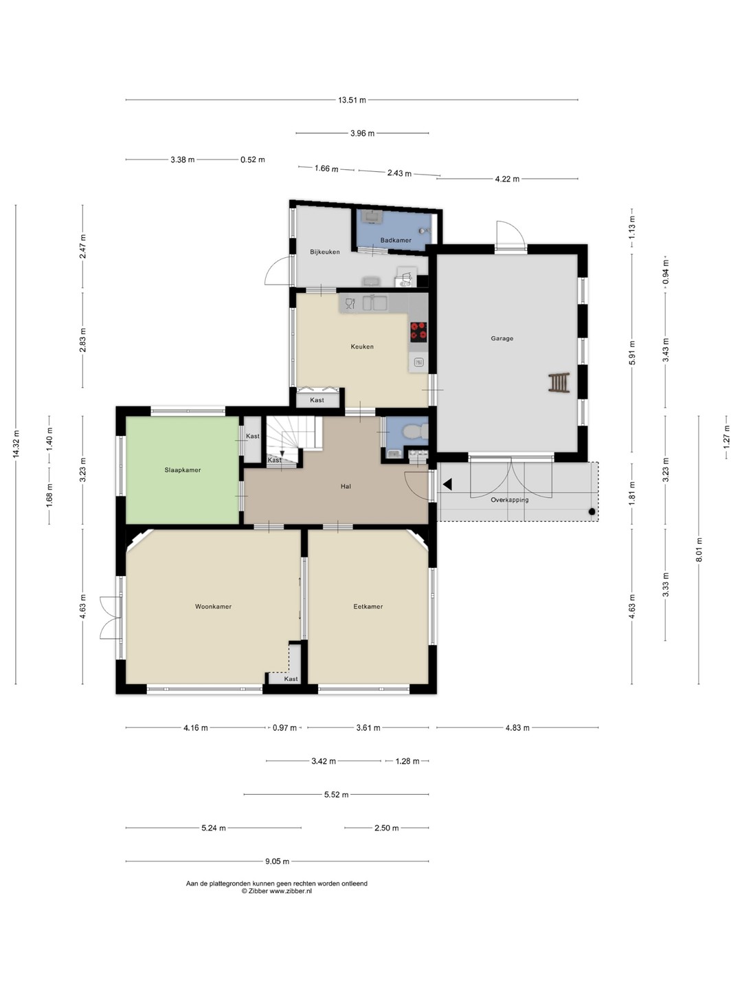
De woning beschikt over circa 172 m² woonoppervlakte en biedt nu al veel leefruimte. Een belangrijk pluspunt is dat de woning in de basis al levensloopbestendig is ingedeeld: zowel een slaapkamer als een badkamer bevinden zich op de begane grond. Daarmee is gelijkvloers wonen hier nu al mogelijk. Net als de rest van de woning zijn deze ruimtes gedateerd en toe aan modernisering, maar de indeling biedt een sterke basis om hier een comfortabele en toekomstbestendige woonoplossing van te maken. Uiteraard is de verdere invulling afhankelijk van de gewenste indeling, vergunningen en bouwkundige mogelijkheden.
Ook de overige ruimtes maken deze woning bijzonder veelzijdig. De grote garage biedt volop ruimte voor auto’s, fietsen, opslag, een werkplaats of hobbyruimte. Boven de garage bevindt zich een ruime bergzolder en ook de zolder van de woning zelf biedt veel potentie. Door hier een vaste trap naar toe te maken en eventueel daglicht te realiseren, is zelfs een volledige extra woonverdieping denkbaar. Daarmee ontstaat er ruimte voor extra slaapkamers, een werkkamer, speelzolder, atelier, praktijkruimte of luxe master bedroom. Juist die combinatie van woonruimte, garage, bergzolder en uitbreidingsmogelijkheden maakt dit huis zo interessant voor kopers die ruimte zoeken en vooruit durven te denken.
De woning is aan de buitenzijde grotendeels netjes onderhouden en grotendeels voorzien van dubbel glas. Binnen is er volop ruimte om te moderniseren, opnieuw in te delen en de woning naar het wooncomfort van nu te brengen. De artist impressions geven alvast een prachtige indruk van wat hier mogelijk is. Met de juiste visie ontstaat hier een stijlvol, royaal en eigentijds woonhuis met allure. Een echt paleisje op een prachtige plek in Didam.
De tuin rondom is een waar verlengstuk van de woning. De vrij gelegen achtertuin op het zonnige zuidwesten biedt volop privacy en alle ruimte voor een groot terras, een verzorgd gazon, sierlijke borders of juist een heerlijke gezinstuin. Hier geniet je van rust, zon en ruimte. Aan de achterzijde bevindt zich bovendien een deur richting het dak van de garage, waardoor ook een royaal dakterras tot de mogelijkheden behoort. Een heerlijke plek voor een kop koffie, een borrel aan het einde van de dag of gewoon een rustig moment voor jezelf.
De ligging is bijzonder aantrekkelijk. Je woont hier rustig en ruim, maar toch nabij het centrum van Didam. Winkels, scholen, zorgvoorzieningen en het NS station bevinden zich op loop of fietsafstand. Sportliefhebbers kunnen terecht bij tennis en padelbanen, voetbalvelden en fitnessclubs in de nabije omgeving. Voor wie graag de natuur opzoekt, liggen de Nevelhorst en de uitgestrekte Montferlandse bossen binnen handbereik.
Ook de bereikbaarheid is uitstekend. Didam ligt gunstig ten opzichte van Arnhem, Doetinchem en Nijmegen en via de A18, A12 en A3 zijn omliggende steden en Duitsland goed bereikbaar. Daarmee combineert deze woning de rust en ruimte van vrijstaand wonen met de praktische voordelen van een centrale ligging.
Marsweg 3 is geen standaard woning. Dit is een huis voor iemand met visie. Voor iemand die door de huidige staat heen kan kijken en ziet hoeveel kwaliteit, ruimte en potentie hier aanwezig is. Een woning die aandacht nodig heeft, maar daar enorm veel voor teruggeeft.
Ben jij op zoek naar een royaal vrijstaand woonhuis op een geliefde plek in Didam, met een groot perceel, een grote garage, veel privacy en volop mogelijkheden om jouw eigen woonwensen te realiseren? Dan is Marsweg 3 absoluut het bekijken waard.
Let op: de woning wordt verkocht met een as is, where is clausule. Dat betekent dat koper rekening dient te houden met de huidige staat van de woning en zelf goed onderzoek dient te doen naar onder andere de bouwkundige en juridische situatie. Juist voor de koper die mogelijkheden ziet, biedt deze woning een prachtige kans.