Description
Ruime hoekwoning met grote tuin, dakkapel en energielabel A – ideaal voor jonge gezinnen!
Welkom aan de Golden Delicious 97 in Duiven , een heerlijke plek om als gezin te wonen!
Deze ruime hoekwoning met een perceel van maar liefst 240 m² biedt alles wat je zoekt: ruimte, licht, een fijne indeling én een grote tuin waar kinderen heerlijk kunnen spelen.
De woning ligt in een rustige, kindvriendelijke wijk, met scholen, speeltuintjes, winkels en openbaar vervoer allemaal op loopafstand. Alles wat je nodig hebt voor het dagelijks gezinsleven ligt dus letterlijk om de hoek!
Wat deze woning zo aantrekkelijk maakt:
• Ruim hoekperceel van 240 m² met veel privacy
• Energielabel A – klaar voor de toekomst
• Grote dakkapel over bijna de volle breedte: volop licht en extra ruimte
• Praktische bijkeuken naast de keuken
• Lichte, goed ingedeelde kamers
• 3 slaapkamers, waarbij een 4e op zolder makkelijk te realiseren.
Indeling
Begane grond:
Entree met hal, meterkast en toilet. De lichte woonkamer heeft grote ramen en een prettige sfeer. De L-vormige keuken is praktisch ingericht en staat in verbinding met de bijkeuken, waar plek is voor de wasmachine en droger. Via de keuken loop je zo de ruime achtertuin in, ideaal voor lange zomeravonden of spelende kinderen. Naast de bijkeuken bevindt zich de schuur.
Eerste verdieping:
Overloop met drie goed bemeten slaapkamers en een nette badkamer met douche, wastafel en tweede toilet.
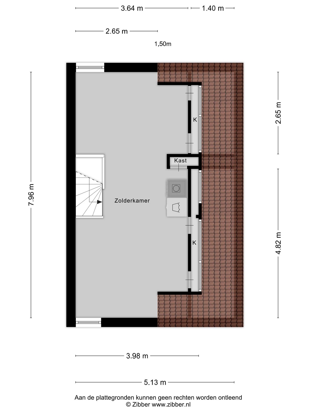
Tweede verdieping:
Een volwaardige zolderverdieping met enorme dakkapel, waardoor er een royale extra kamer ontstaat. Perfect als vierde slaapkamer, werkkamer of speelzolder.
Waarom jij hier wilt wonen:
De Golden Delicious 97 combineert ruimte, comfort en een ideale ligging in een prettige woonwijk. Of je nu toe bent aan een volgende stap met je gezin of een fijne gezinswoning zoekt om in te groeien — dit huis voelt meteen als thuis.